
Thiết kế nội thất hiện đại chung cư 60 m2 trẻ trung
Mẫu thiết kế nội thất hiện đại chung cư 60 m2 trẻ trung tạo điểm nhấn với tone màu hồng phấn
Đây thực sự là không gian lý tưởng dành cho những đôi vợ chồng trẻ, mới cưới. Bởi không gian được tạo điểm nhấn với tone màu hồng phấn, mang tới không gian sống lãng mạn và trẻ trung. Hãy tham khảo ngay mẫu thiết kế này dưới đây nhé!
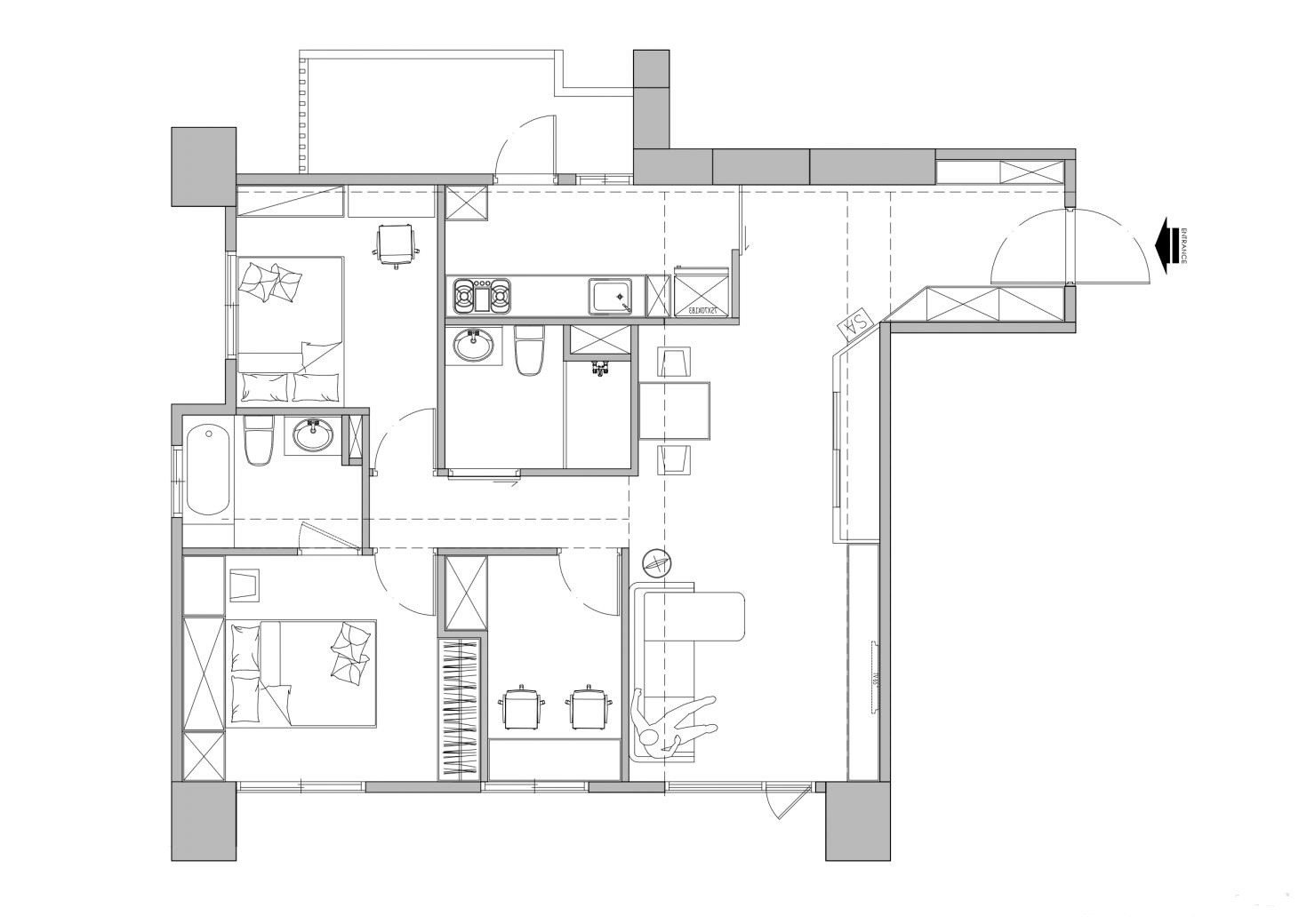
Mặt bằng bố trí công năng trong căn hộ chung cư 60m2
Căn hộ chung cư có diện tích khoảng 60m2 hiện nay thường được bố trí với 2 phòng ngủ. Phòng khách, phòng bếp và phòng ăn. Các không gian sinh hoạt chung trong gia đình thường được thiết kế liên thông với nhau để mang tới không gian thêm rộng rãi và thoải mái hơn
Lối vào bên trong căn hộ
Nội thất hiện đại chung cư 60m2 không quá lớn, vì vậy không gian trong căn hộ được tận dụng tối đa. Ngay lối vào đã thiết kế tủ để giày cũng với những vật dụng như mũ, ô che nắng mưa. Bên cạnh đó còn thiết kế ghế băng dài để ngồi trong khi đi giày dép.
Không gian phòng khách và phòng ăn được bày trí liên thông với nhau
Không gian phòng khách được trang trí với 3 tone màu đủ đạo là màu ghi xám, màu trắng và màu hồng phấn tạo điểm nhấn. Không gian tiếp khách và bàn ăn gia đình được bố trí liên thông với nhau, không sử dụng vách ngăn giúp không gian trở nên thông thoáng hơn.
Phòng khách bày trí bộ sofa văng và ghế thư giãn
Phòng khách nhỏ được bố trí ghế sofa văng bọc nỉ màu ghi xám giúp tiết kiệm tối đa diện tích bày trí. Bên cạnh đó kết hợp với ghế bập bênh thư giãn giúp mang tới không gian lý tưởng để giải tỏa căng thẳng hoặc đọc sách khi cần. Phòng khách sử dụng thảm trải sàn hình tròn giúp không gian trở nên rộng rãi hơn.
Sử dụng kệ tivi treo tường giúp tiết kiệm diện tích và dễ dàng vệ sinh dưới gần kệ tivi
Bộ bàn ghế ăn gỗ nhỏ gọn với tone màu hồng phấn là điểm nhấn cho không gian phòng ăn. Sử dụng chiếc đèn thả cùng với tường ốp gỗ giúp mang tới giá trị thẩm mỹ cao cho không gian này.
Không gian phòng ăn ấm cúng
Bộ bàn ghế ăn thiết kế đặc biệt khi có sự kết hợp màu sắc là xám, trắng và hồng phấn. Đây là những tone màu chủ đạo đang được sử dụng để trang trí cho toàn bộ không gian.
Bàn ăn nhỏ gọn dành cho 2 người
Phòng ngủ có diện tích nhỏ, cho nên tích hợp tủ đựng đồ và bàn làm việc với nhau giúp tận dụng tối đa diện tích bày trí trong phòng. Đồng thời mang tới không gian sống tiện nghi hơn. Tạo điểm nhấn cho phòng ngủ bằng khoảng không gian màu xanh dương nổi bật.
Phòng ngủ được trang trí với tone màu trắng chủ đạo
Tận dụng tối đa tủ đựng đồ, kết hợp góc làm việc tiện nghi
Phòng ngủ thứ 2 của căn hộ cũng được thiết kế với các gam màu chủ đạo như: trắng, xám, hồng phấn. Không gian nhỏ nhưng tận dụng được tối đa nguồn ánh sáng tự nhiên. Bởi vậy mang tới không gian sống thoáng mát và thoải mái hơn.
Không gian trong phòng ngủ thứ 2 của căn hộ
Trên đây là mẫu thiết kế nội thất hiện đại chung cư 60 m2 trẻ trung với tone màu hồng phấn là điểm nhấn. Những mẫu thiết kế nội thất theo phong cách hiện đại dành cho những căn hộ có diện tích vừa và nhỏ đang được rất nhiều người tìm kiếm hiện nay.